Преимущества Systemair DVV 630D4-XS:
- Электродвигатель вынесен из потока перемещаемого воздуха
- Вертикальный выброс воздуха при температуре перемещаемой среды до 120°C
- Подходят для использования на морском побережье
- Широкий ассортимент принадлежностей
- Энергоэффективный односкоростной двигатель класса IE2. В двухскоростном вентиляторе - двигатель IE1
- Встроенный термистор (PTC)
- Боковое присоединение аксессуаров согласно EUROVENT
Рекомендации по применению: Модификации вентиляторов DVV (120°C) предназначены для удаления высокотемпературного вытяжного воздуха, например, из кухонных помещений.
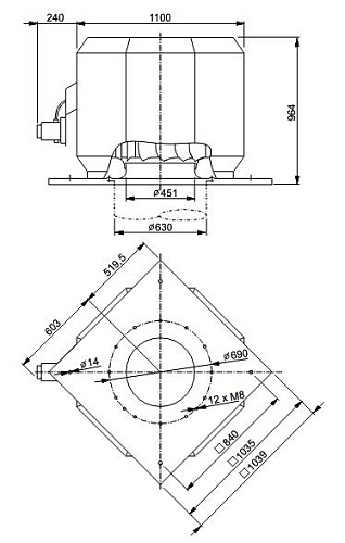
Конструкция: Корпус вентилятора имеет восьмиугольную форму и выполнен из алюминия , рама основания - из оцинкованной стали. DVV оборудованы электродвигателем, вынесенным из потока перемещаемого воздуха и рабочим колесом с загнутыми назад лопатками. Рабочее колесо моделей, предназначенных для эксплуатации при 120°С, выполнено из оцинкованной стали.
Двигатель: Энергоэффективный двигатель расположен в герметичном теплоизолированном отсеке, вне воздушного потока. Охлаждение осуществляется свежим воздухом через дополнительный воздуховод. Двигатель имеет встроенный термистор (РТС) с выводами на внешнее устройство защиты от перегрева. Защита двигателя требует подключения клиентом самостоятельно. Сервисный выключатель находиться на охлаждающем воздуховоде. Для регулирования скорости в односкоростных вентиляторах применяется преобразователь частоты с синус-фильтром (либо с du/dt-фильтром), в соответствии с инструкцией. Может потребоваться дополнительная ЕМС-защита (доступна по запросу).
 
         
                                 
             
                                         
                                         
                                         
                                 
                                 
                                