Преимущества:
- Возможность регулирования скорости
- Встроенные термоконтакты
- Монтаж в любом положении
- Не требуют обслуживания и надежны в работе
Рекомендации по применению: Вентиляторы RS предназначены для приточно-вытяжных систем вентиляции с воздуховодами прямоугольного сечения, когда пространство для монтажа ограничено и по условиям эксплуатации требуется частая очистка рабочего колеса.
		 
		 Конструкция: Корпус изготовлен из оцинкованной листовой стали. Двигатель и рабочее колесо крепятся на откидной крышке, чтобы обеспечить легкий доступ к ним для обслуживания.
		
		 
		 Двигатель: RS оснащены двигателями с внешним ротором и рабочим колесом с загнутыми назад лопатками. Для защиты от перегрева вентиляторы RS 30-15, RS 40-20 и RS 50-25 оснащены встроенными термоконтактами с электрическим перезапуском.
		
		 
		 Регулирование скорости: Скорость 1-фазных вентиляторов можно регулировать с помощью 5-ти ступенчатого трансформатора или плавно, с помощью тиристора.
		
		 
		 Подключение: Электрические подключения вентиляторов RS производятся в клеммной коробке, установленной на крышке вентилятора.
		
		 
		 Монтаж: Монтаж RS осуществляется под любым углом относительно оси вентилятора. Вентиляторы RS легко соединяются с воздуховодами при помощи гибких вставок DS.
		
		 
		 Сертификаты: Сертификаты соответствия РФ и Украины
		
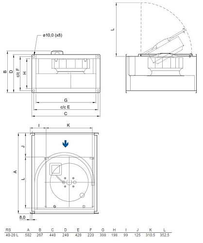
Размеры
 
		| 
 | 
Схема подключения
Z = Brown - коричневый
U1 = Blue - синий
Z = Black - черный
PE = Yellow /green - желтый /зеленый

 
         
                                 
             
                                         
                                         
                                         
                                         
                                 
                                 
                                 
                                