Вентилятор для пямоугольных каналов
Рекомендации по применению: Для приточно-вытяжных систем вентиляции с воздуховодами прямоугольного сечения, когда пространство для монтажа ограничено и по условиям эксплуатации требуется частая очистка рабочего колеса.
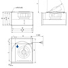
Конструкция: Корпус изготовлен из оцинкованной листовой стали. Двигатель и рабочее колесо крепятся на откидной крышке, чтобы обеспечить легкий доступ к ним для обслуживания.
Двигатель: RS оснащены двигателями с внешним ротором и рабочим колесом с загнутыми назад лопатками. Для защиты от перегрева вентиляторы RS 60-35, RS 70-40, RS 80-50, RS 100-50 оснащены встроенными термоконтактами c выводами для подключения внешнего устройства защиты двигателя.
Регулирование скорости: Скорость 1-фазных вентиляторов можно регулировать с помощью бесступенчатого тиристора или 5-ти ступенчатого трансформатора, 3-х фазных - с помощью 5-ти ступенчатого трансформатора.
Подключение: Вентиляторы серии RS электрически подключаются к клеммной коробке, установленной на крышке вентилятора.
Монтаж: Осуществляется под любым углом относительно оси вентилятора. Вентиляторы RS легко соединяются с воздуховодами при помощи гибких вставок DS.
Сертификаты: Сертификаты соответствия РФ и Украины
Размеры

| 
 | 
Схема подключения

 
         
                                 
             
                                         
                                         
                                         
                                         
                                 
                                 
                                 
                                