Особенности Systemair Topvex TX/C04 HWL-R
- Компактность, верхнее подключение воздуховодов
- Высокоэффективный противоточный рекуператор
 - КПД > 80% (EN 308) при номинальном расходе воздуха
 - Раздельные потоки приточного и вытяжного воздуха, без смешения
 - Автоматический переход на «Летний режим»
 - Рекуперация холода
- Низкое энергопотребление
 - Энергоэффективные прямоточные вентиляторы с EC-двигателями
 - 100% байпас рекуператора обеспечивает наименьшие перепады давления внутри агрегата в теплое время года
 - Клапан перекрывает рекуператор в течение теплого времени года, тем самым исключает нежелательную рекуперацию тепла.
- Встроенная запрограммированная система автоматики
 - Эффективные функции энергосбережения
 - Годовой планировщик позволяет устанавливать расписание работы агрегата на каждую неделю с учетом праздничных и выходных дней
- Постоянный расход воздуха или постоянное давление в канале (аксессуары)
- Большие инспекционные дверцы облегчают техническое обслуживание
- Легкий доступ к коробке электрических соединений облегчает ввод оборудования в эксплуатацию и технические обслуживание
- Корпус изготовлен из листового металла с Алюцинковым покрытием (AZ185)
 - Класс коррозионной защиты C4 (Промышленные и прибрежные районы с умеренной концентрацией соли)
 - Срок эксплуатации листовой стали с покрытием AZ185 более 50 лет
- Заводское тестирование
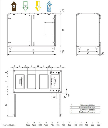
Topvex TX/C – серия высокоэффективных воздухообрабатывающих агрегатов разработанных для жилых домов, офисов, магазинов, учебных заведений и других строений. Агрегаты с противоточным рекуператором востребованы в помещениях, где требуется разделение приточного и вытяжного воздуха и высокие требования по энергосбережению. Высокий КПД рекуперации и низкое потребление электроэнергии агрегатов Topvex TX/C обеспечивают соответствие линейки действующим и будущим требованиям по энергоэффективности вентиляционного оборудования.
Корпус агрегата представляет собой сэндвич панель, с двухсторонней обшивкой стальными листами с алюцинковым покрытием и тепло/звуко изоляцией из минеральной ваты. Верхнее подключение воздуховодов позволяет экономить занимаемую агрегатом площадь в помещении.
		
		Отдельная коробка со всеми электрическими соединениями упрощает запуск агрегата и сервисное обслуживание.
Встроенная и запрограммированная система автоматики упрощает монтаж и запуск агрегата в эксплуатацию. Topvex TX/C имеют дружественную для пользователя систему управления. Пульт управления на русском языке с логической структурой меню. Мастер первого запуска поможет задать все уставки, необходимые для корректной работы агрегата. Встроенная система автоматики позволяет управлять скоростью вентилятора, температурами воздуха, временными интервалами. Помимо этого, Topvex TX/C обеспечивает такие энергосберегающие функции, как естественное охлаждение, рекуперацию холода, регулирование расходом воздуха и температурами в зависимости от времени года. CAV или VAV регулирование расхода воздуха доступны как аксессуары.
Topvex TX/C встандартнойкомплектацииподдерживаетследующиесредствакоммуникации: Built-in web, Cloud, Modbus, BACnet и Exoline.
Программа E-tool. Etool© - программа с графическим интерфейсом. Программа дает прекрасную возможность просмотра настроек CorrigoE. Используя программу Etool© все настройки могут быть выполнены на компьютере и загружены в контроллер. Определенная конфигурация может быть сохранена на компьютере для дальнейшего использования.
Функции и функциональные возможности Topvex TX/C, широкий ассортимент аксессуаров дают Вам все, что необходимо для создания комфортного микроклимата в помещении с наименьшими эксплуатационными затратами. Сохраните экологию Земли, используя Topvex TX/C.
Код заказа.
EL (Электрический).
HWL (Водяной, малой мощности).
HWH(Водяной, высокой мощности).
None (Без нагревателя).
CAV(постоянный расход воздуха).
VAV(Переменный расход воздуха = поддержание постоянного давления в каналах).
 
         
                                 
             
                                         
                                         
                                         
                                 
                                 
                                